











Podesttreppen ohne Stützteil, LW 800, Neigung 60°
Auftritt: | Stufe R13 |
---|---|
Ausladung: | 1,52 |
Einsatz: | Selbstbautreppen |
Material: | Aluminium / Stahl |
Produktserie: | Serie 100 S |
Standhöhe: | 1 |
Stufenanzahl: | 4 |
Produktinformationen "Podesttreppen ohne Stützteil, LW 800, Neigung 60°"
Vorzüge
Aufstiege zu höher gelegenen Gebäudeteilen, an Maschinen, Anlagen und Lagereinrichtungen
Zur Befestigung am Boden
Montiert, jedoch zum Transport in Baugruppen zerlegt
Holme
An der Podeststirnseite mit Treppenkopfscharnier zur Befestigung an senkrechten Flächen
Untere Wangenenden mit Treppenfußwinkel, inkl. Bohrung zur Befestigung am Boden
Podestholm mit integrierter 100 mm hoher Fußleiste
Geländer
Beidseitig am Aufstieg
Beidseitig am Podest, dadurch Ausstieg stirnseitig (andere Ausführungen auf Kundenwunsch möglich)
Zweiter Handlauf bei Wandabstand >120 mm nach DIN EN ISO 14122-3 erforderlich
Ab 60° ist ein zweiter Handlauf nach DIN EN ISO 14122-3 immer erforderlich
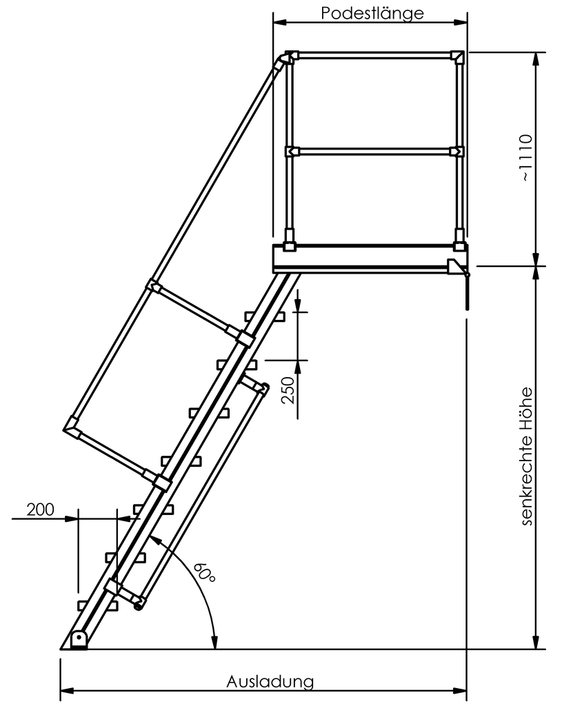
Maße
Podestlänge 1000 mm
Podestgeländerhöhe 1100 mm
Sonderausstattungen (siehe ab Seite 149):
Podestvergrößerung/-Verkleinerung
Lotrecht abgewinkelte Fußenden anstelle schräger Wangenenden
Treppenschuhe anstelle Treppenfußwinkeln
Zwischenpodest
Türchen selbstschließend
Seitlicher Ausstieg
Preis für Fixmaßtreppen (Zwischenmaße »senkrechte Höhe...«): Preis der nächsten Größe
Selbstbautreppen mit Neigung 35° – 36°
entsprechen der Arbeitsstättenverordnung und den Arbeitsstättenrichtlinien als Wartungszugang.
Selbstbautreppen mit Neigung 35° – 55°
entsprechen der DGUV 101-002 „Treppen bei Bauarbeiten“
DIN EN ISO 14122
DIN EN 131
In Anlehnung an DIN EN ISO 14122/DIN EN 131
Vorschau | Produktnummer | Ausladung | Standhöhe | Stufenanzahl | Preis | Kaufen |
---|
Technische Änderungen und Preisänderungen vorbehalten. Maß- und Gewichtsangaben in ca.-Werten. Haftung für Irrtum und Fehler ausgeschlossen. Abbildungen ähnlich, manche Abbildungen zeigen Sonderausstattung. Vorschaubilder stehen stellvertretend für eine Produktfamilie und können optisch daher vom konkret gesuchten Produkt abweichen, u.a. bei Stufenanzahl oder Material.
Verwandte Produkte
Zubehör
Kontaktieren Sie uns zu:
Podesttreppen ohne Stützteil, LW 800, Neigung 60°
Für weitere Informationen zu unseren hochwertigen Produkten und um Ihre Fragen zu beantworten, zögern Sie bitte nicht, uns zu kontaktieren. Unser kompetentes Team steht Ihnen gerne zur Verfügung und hilft Ihnen bei der Auswahl der richtigen Leiter für Ihre Bedürfnisse. Wir freuen uns darauf, von Ihnen zu hören und Sie bei Ihrem Aufstieg sicher zu unterstützen. Kontaktieren Sie uns noch heute!
Anfrage zu Podesttreppen ohne Stützteil, LW 800, Neigung 60° ->
