Vario Laufstegsystem
Auftritt: | Stufe R13 |
---|---|
Einsatz: | Laufstegsystem |
Grundfläche: | Stütze |
Material: | Aluminium / Stahl |
Produktserie: | Serie 100 S |
Senkrechte Höhe: | 2 |
Typ: | Stütze |
Produktinformationen "Vario Laufstegsystem"
Vorzüge
Zur Befestigung am Boden
Montiert, jedoch zum Transport in Baugruppen zerlegt
Stufen und Plattformbeläge aus 100S
Aufstieg
Der Aufstieg erfolgt immer über das Aufstiegsteil
Holme
Podestholm mit integrierter 100 mm hoher Fußleiste
Untere Wangenenden mit Treppenfußwinkel, inkl. Bohrung zur Befestigung am Boden
Geländer
Beidseitige Geländer am Aufstieg und Podest
Das stirnseitige Geländer der Laufsteganlage ist immer automatisch bei dem Aufstiegsteil im Lieferumfang enthalten
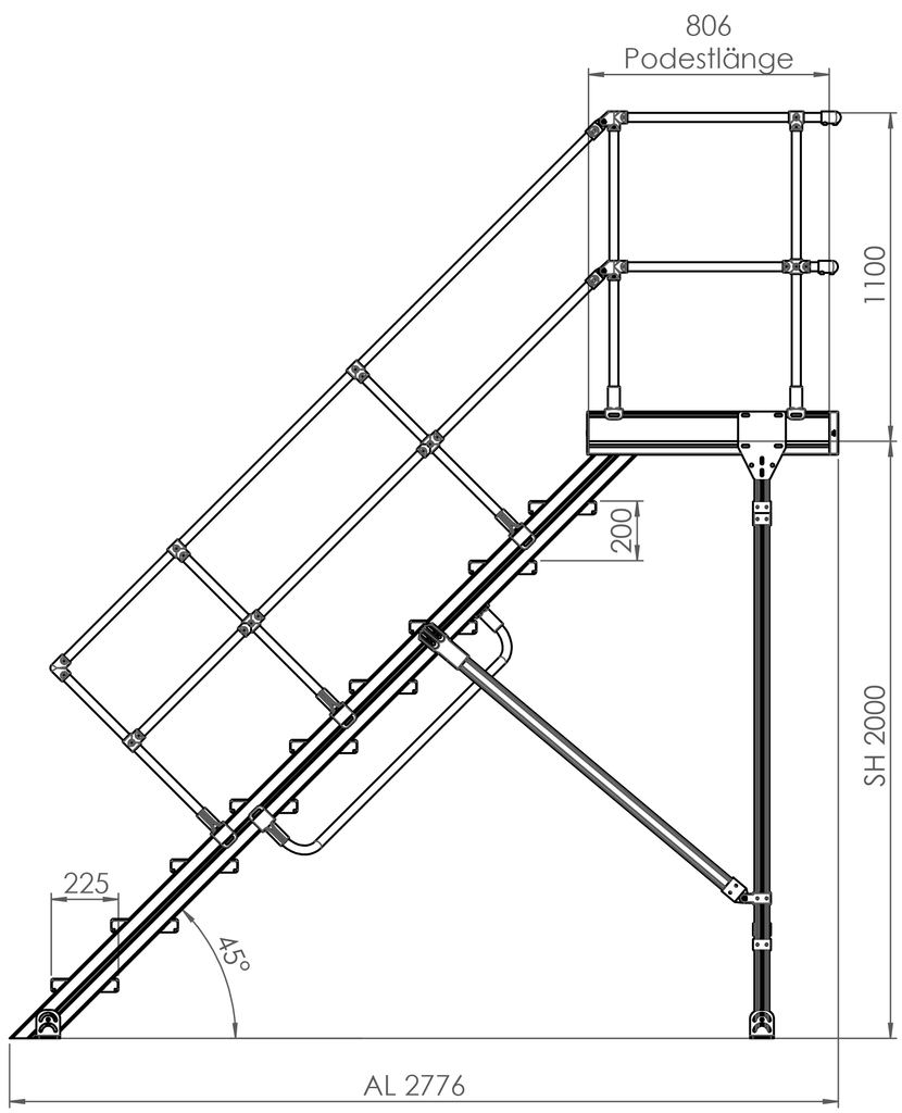
Maße
Podestgeländerhöhe 1100 mm
Senkrechte Höhe (SH) 2000 mm
Lichte Weite (LW) 800 mm
Podestlänge (PL) des Aufstiegsteils 800 mm
Sonderausstattung
Türchen selbstschließend
Andere senkrechte Höhen (SH) und Lichte Weiten (LW) auf Anfrage
Geländer steckbar
Andere Stufen- und Plattformbeläge möglich
Allgemein
Eine Laufsteganlage besteht immer aus einem Aufstiegsteil + Podest + Stütze
Je Podest muss immer eine Stütze verbaut werden
Technische Änderungen und Preisänderungen vorbehalten. Maß- und Gewichtsangaben in ca.-Werten. Haftung für Irrtum und Fehler ausgeschlossen. Abbildungen ähnlich, manche Abbildungen zeigen Sonderausstattung. Vorschaubilder stehen stellvertretend für eine Produktfamilie und können optisch daher vom konkret gesuchten Produkt abweichen, u.a. bei Stufenanzahl oder Material.
Kontaktieren Sie uns zu:
Vario Laufstegsystem
Für weitere Informationen zu unseren hochwertigen Produkten und um Ihre Fragen zu beantworten, zögern Sie bitte nicht, uns zu kontaktieren. Unser kompetentes Team steht Ihnen gerne zur Verfügung und hilft Ihnen bei der Auswahl der richtigen Leiter für Ihre Bedürfnisse. Wir freuen uns darauf, von Ihnen zu hören und Sie bei Ihrem Aufstieg sicher zu unterstützen. Kontaktieren Sie uns noch heute!
Anfrage zu Vario Laufstegsystem ->
