Holmbügel, Übersteigteile und Ausstiegsteile
-
Produkte
-
Mobile Leitern
- Stufenleitern und Sprossenleitern
- Tritte, Standroste, Klappböcke und Arbeitsdielen
- Arbeitsbühnen und Podestleitern
- Branchenlösungen und Sonderkonstruktionen
- Zubehör für Arbeitsbühnen und Podestleitern
- Zubehör für Mobile Leitern
- Zubehör für Regalleitern
- Zubehör für Treppen und Überstiege
- Zubehör für Tritte
-
Ortsfeste Leitern
- Zweiholmleitern und Steigleitern
-
Zubehör für Zweiholmleitern und Steigleitern
- Anschlussbögen und Fußplatten
- Befestigungsmaterial
- Besteigesicherung
- Einstieghilfen und Haltegriffe
- Endanschläge und Befestigungsmaterial
- Fußplatten an Regalanlagen
- Haltegriffe
- Holmbügel, Übersteigteile und Ausstiegsteile
- Plattformen und Standroste
- Podeste
- Rückenschutz
- Standroste
- Türchen und Schranken
- Wandbefestigungen
- Sonstiges Zubehör
- Wandbefestigungen an Regalanlagen
- Kappen
- Einholmleitern und Fallschutzschienen
- Zubehör für Einholmleitern und Fallschutz aus Stahl und VA
- Zubehör für Einholmleitern und Fallschutz aus Aluminium
- Steigeisen
- Sprossenprofile
- Zubehör für Vario-Rail
- Treppen, Überstiege und Laufstege
- Ausstiegsgeländer und freistehende Absturzsicherungen
- Rettungstechnik
- PSA
- Clifter / Steighilfe
- Rohrverbinder
- Bodentreppen
- Gerüste und Arbeitsbühnen
- Ersatzteile
-
Mobile Leitern
- Konfigurator
- Branchen
- Service
- Unternehmen
- Kontakt
- Jobs + Karriere
Filter
–
Ausstiegsteil ohne Rückenschutzkorb
Anstelle von Holmbügeln kann ein komplettes Ausstiegsteil montiert werden. Es ermöglicht einen bequemen Durchstieg durch den großen lichten Abstand der Holme, die außerdem noch schräg nach hinten verlaufen.
Inklusive einem Paar Wandbefestigungen und zwei Stck. Bodenplatten. Zugangssicherungen (Schranke, Türchen) beachten.
504,00 €*
Gegengewicht für Übersteigteile
Gegengewicht PVC
Zum Einsatz auf Flachdächern, bei denen die Dachhaut und die Attika nicht beschädigt werden dürfen.
Durch verstellbare Ausleger kann der Abstand der Gewichte zur Attika variiert werden.
1 Set besteht aus 2 Auslegern, 4 Gewichten und Befestigungsmaterial.
Zubehör
Unterlegmattenset enthält 2 Unterlagen zum Schutz des Dachbelags
für Bitumendächer: Bautenschutzmatten Bestell-Nr. 0529 2440 09 23,50 €/Set
für Foliendächer: Bautenschutzmatten mit Vlieskaschierung Bestell-Nr. 0529 2440 10 26,00 €/Set
907,00 €*
Gegengewicht für Übersteigteile
Gegengewicht mit Gehwegplatten
Zum Einsatz auf Flachdächern, bei denen die Dachhaut und die Attika nicht beschädigt werden dürfen.
Die Ballastierung erfolgt mit handelsüblichen Gehwegplatten (5 x 25 kg). Der Platzbedarf der Ballastierung auf dem Dach beträgt nur 600 mm.
Fußplatten sind enthalten.
Die Gehwegplatten müssen separat bestellt werden. Das Loch zur Befestigung der Gehwegplatten muss bauseits in diese gebohrt werden.
0529 2450 00 ist nicht für die Übersteigteile 0529 2404 20 bis 40 geeignet.
Zubehör
5 x 25 kg Gehwegplatten ohne Armierung
Maße 500 x 500 x 50 mm
Bestell-Nr. 0529 2450 05 82,00 € p. Set
591,00 €*
Holmbügel mit kurzen Schenkeln
Bei Holmbügel Typ 0528.04.50, 0528.1450, 0928.1450, 0629.04.50 und 0629.1450 muss zur Befestigung ein zusätzliches Paar Wandhalter montiert werden.Sicherheitsschranken/Türchen beachten – siehe Seite 50
77,50 €*
Holmbügel mit kurzen Schenkeln verlängert
Bei Holmbügel Typ 0528.04.50, 0528.1450, 0928.1450, 0629.04.50 und 0629.1450 muss zur Befestigung ein zusätzliches Paar Wandhalter montiert werden.Sicherheitsschranken/Türchen beachten – siehe Seite 50.
130,00 €*
Holmbügel mit langen Schenkeln
Die unteren Enden sind eingezogen, daher ist die Befestigung auf dem Dach mittels Fußplatten Typ 0529.16.10 möglich – siehe Seite 46.
Beachten Sie die Plattform Typ 0529.23.10 – siehe Seite 49.
126,00 €*
Holmverlängerung – gerade
Die oberen Enden sind eingezogen, daher ist die Befestigung an der Wand mittels Anschlussbogen Typ 0529.11 möglich – siehe Seite 46.
Beachten Sie die Plattform Typ 0529.23.10 – siehe Seite 49.
79,50 €*
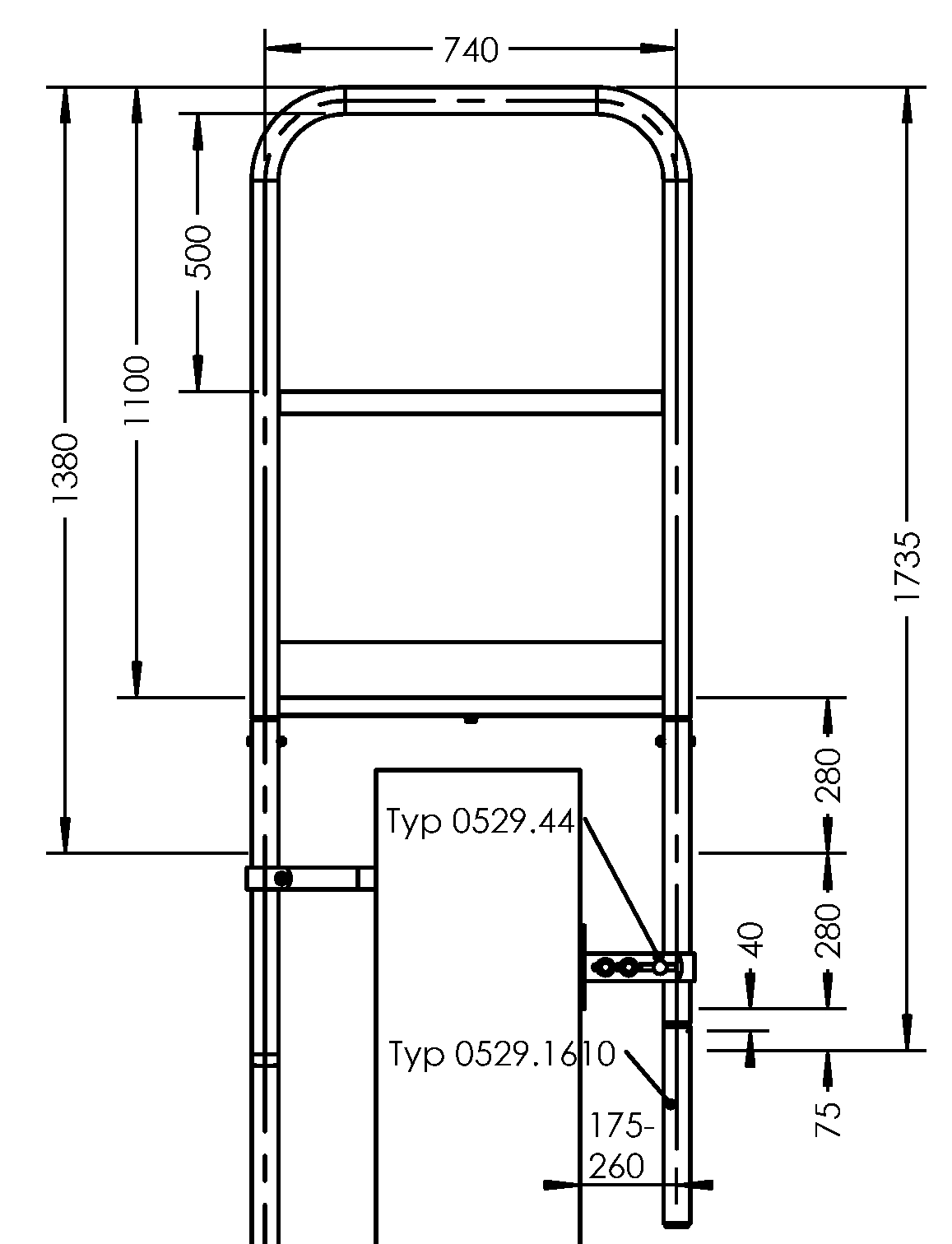
Übersteigteil
Aus Stahl, feuerverzinkt, Übersteigmaß ca. 740 mm. Lauffläche aus Gitterrost. Lieferform: im Bausatz. Erhältlich mit dachseitigem Leiterteil in Größe 2, 3 und 4 – somit für Attika bis Höhe von ca. 1,45 m geeignet. Um Maßdifferenzen ausgleichen zu können, zusätzlich verstellbare Wandbefestigungen Typ 0529.44 bestellen. Ideal mit Fußplatte 0529.1620 zu verbauen.
Andere Übersteigmaße siehe Übersteigteile im Bausatz.
Für Attikabreite XX - XX mm
1.125,00 €*
Übersteigteile im Bausatz
Aus Stahl, feuerverzinkt, Übersteigmaße von 810–1560 mm. Lichte Weite 502 mm. Lauffläche aus Gitterrost. Lieferform: im Bausatz bestehend aus Steigteilen, Rohren, Rohrverbindern, Gitterrost und den erforderlichen Verbindungsschrauben. Zur bauseitigen Montage.
Für Übersteigmaße von ca. 810–1560 mm.
Fußplatten Typ 0529.1620 sind nicht enthalten. Attikahöhe max. 1030 mm
– siehe Seite 48.
1.163,00 €*

Haca Online-Konfigurator
Ihre maßgeschneiderten Steiglösungen & Leitern
Mit unserem benutzerfreundlichen Online-Konfigurator können Sie jetzt Ihre Traumleiter nach Ihren individuellen Bedürfnissen gestalten. Entdecken Sie die Vorteile:
Entdecken Sie die Vorteile:
- Maßgeschneidert für Sie
- Maximale Sicherheit
- Einfache Nutzung
